Lemesis

Lemesis 16" kreisā pause priekš Kverneland KK073005, 073005

kood: 4401
tootja: Kramp
2-7 dienas
3775Ilma käibemaksuta 31.20 €
 

  • Bränd
Hind sisaldab käibemaksu 21%.
Näidatud hind kehtib tellimisel 20.01.2026.

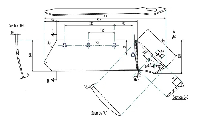
Hole spacing

40 mm
95 mm
120 mm
110 mm
Length of the upper part - 370 mm
Total length - 563 mm
Size - 16 inches
Mounting side - Left
Number of mounting holes -4
Height - 145 mm
Suitable for:
Kverneland
Pöttinger
Suitable for body

6
7
8
9
25
28
29
36 W
41 W
Original number equivalent - Kverneland: KK073005, 073005
Type of additional wear protection - n/a

Seotud tooted